Badkamer ontwerp

Badkamer ontwerp

Badkamer
Badkamer ontwerp op maat. Gebruik van natuurlijke kleuren en materialen. De uitdaging was de kleine ruimte van deze badkamer.

Het plan

Na een kennismakingsgesprek, en het noteren van de wensen is gestart met het plan. Hiervoor is ontwikkeld: Een moodboard, creatief ontwerp, plattegrond schetsen, meubelplan, kleur- en materiaalplan.

 

Moodboard

Image

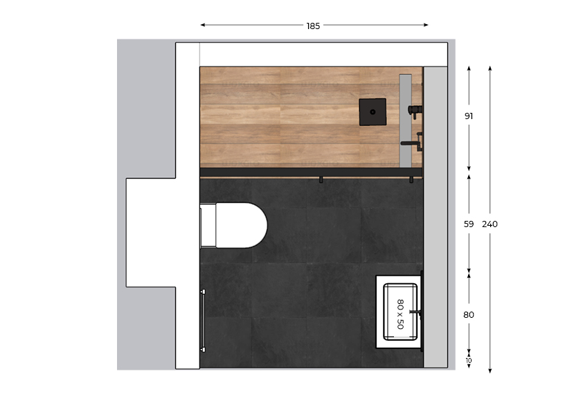
Plattegrond

Image

Eindresultaat

Image
Image

Buitenaanzicht

Image

Wilt u ook een uniek badkamer ontwerp?

Neem contact op